ADDRESS PLANNING
FATİH MUNICIPALITY & KHAS SURVEY PROJECTS
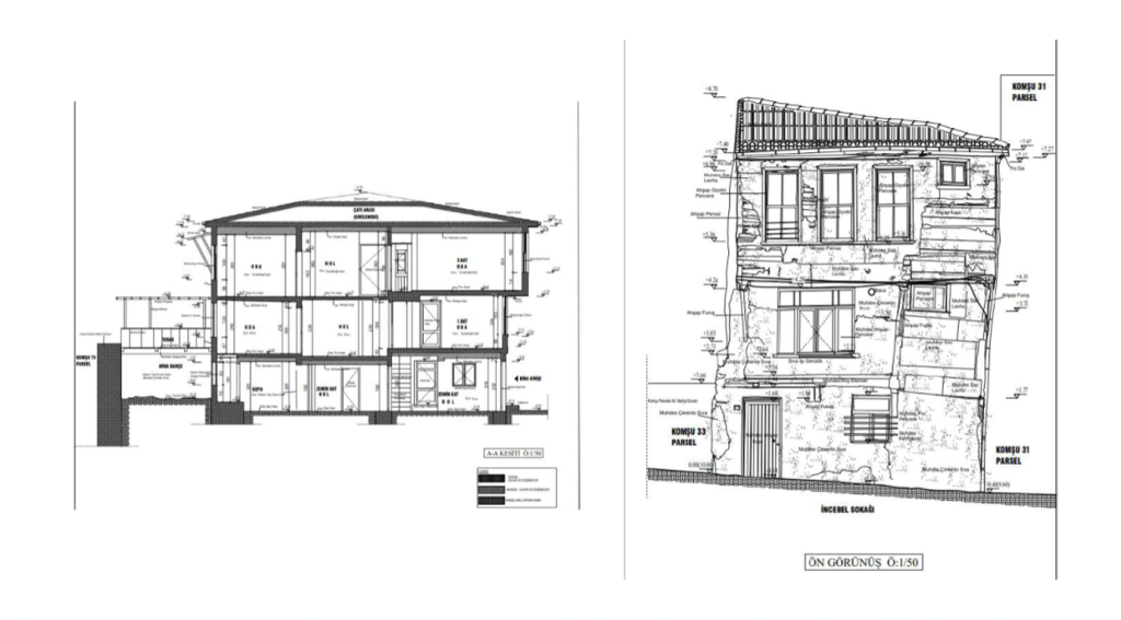
In the first phase of the project, which has been carried out jointly by Istanbul Fatih Municipality and Kadir Has University since 2022, it is aimed to take the relief of 70 buildings in total. These structures determined by the municipality are uploaded to the database, and a study was initiated to ensure that no area in the region has data about the building and to create an address planning database.
Three-dimensional scanning of all the buildings identified before the survey work was carried out in this region. Three-dimensional scanning can be considered as an x-ray of the building. It enables the reveal of the structures with all their details. Afterward, by going to the island parcel where each scanned building is located, one by one, the survey is taken and added to the Municipality database. Of the 70 surveys on our list, 39 have been completed, and the works for the remaining islands and parcels are still in progress.
In case of any disaster, when the buildings are damaged, demolished, etc., to access the history of the building on that island parcel, the building survey must be taken in public institutions, so this work we carry out for the missing surveys is critical.
On 2 August 2023, in the evaluation meeting on “Surveying, Restitution and Restoration Studies of Immovable Cultural Heritage in Istanbul Province” held under the chairmanship of Istanbul Governor Davut GÜL in the meeting hall of Istanbul Governorship AFAD, Fatih Mayor Mehmet Ergün Turan mentioned the surveying studies we carried out and said that it is the first university among universities to undertake such a project.
URBAN DATA DASHBOARD
Kadir Has University Istanbul Studies Center is the partner of the project Empowering Civil Society and Municipalities for Data-Driven Participatory Gender Equality Policies conducted by the Turkish Economic and Social Studies Foundation (TESEV). The project aims to provide accessible data on gender inequalities and their distribution at the neighborhood level in İzmir and Balıkesir and to highlight the importance of data-driven decision-making by visualizing this data on an interactive platform. By doing so, the project aims to increase the advocacy activities of civil society organizations by strengthening the cooperation between CSOs and local governments. Access to spatial and urban evidence will allow women’s CSOs to present new, diversified, and tangible demands for urban governance based on gender equality to municipalities and other public institutions. Women’s CSOs will find opportunities for informed participation and advocacy for gender equality.
Within the scope of the project, gender-sensitive neighborhood-level datasets were prepared for both project cities. Data on average household size, marital status, education, population density, preschool education, health, and access to public transportation services were gathered, and thematic and synthesis maps were prepared for monitoring gender inequalities by geographic distribution. For more information, please visit: https://map.kent95.org/#

Find below our list of TECHNOPARK projects.
| No | Project Title | Company Name | Industry / Sector |
|---|---|---|---|
| 1 | AIRO Revenue Management Systems | Airo Technology Software Trade Inc. | Software |
| 2 | SETAF2018 Geotechnical Engineering Software | Akzel Engineering Construction Industry and Trade Ltd. | Software |
| 3 | AI-Based Strategic Pricing Model | Analythink Information Technologies Inc. | Software |
| 4 | AI-Based CRM Analytics Project | BCC Technology Inc. | Software |
| 5 | Digital Contract | Bigsafer Digital Technology Solutions Inc. | Software |
| 6 | Development of an AI-Supported Activity Management Program | Concentit Consulting Trade Ltd. | Software |
| 7 | ESB for Energy | Crealab Technology Engineering Services Inc. | Energy |
| 8 | CRM Modernization and Co-Location Microservice Transformation | Definex Consulting Inc. | Software |
| 9 | Document Management System | Definex Consulting Inc. | Software |
| 10 | Advanced Mobile Signing Technology | Definex Consulting Inc. | Software |
| 11 | Sustainability Analysis System | Definex Consulting Inc. | Software |
| 12 | Commercial Loan Transformation Program | Definex Consulting Inc. | Software |
| 13 | Telecom TTVPN Order Management Modernization and Maestro Transition | Definex Consulting Inc. | Software |
| 14 | AI-Supported Process Tracking System for Operating Rooms | Exin Health Technology Inc. | Software |
| 15 | High-Speed Box Opening System with Planetary Gear Mechanism | Forma Technology Industry and Trade Inc. | Engineering / Architecture |
| 16 | Digital Transformation and Data Management – Error-Preventing Automatic E-Invoice Entry Project | Forma Technology Industry and Trade Inc. | Engineering / Architecture |
| 17 | “Box-Motion Wrapping System” Packaging Design Project | Forma Technology Industry and Trade Inc. | Engineering / Architecture |
| 18 | 2 Index Top Loader Robot Mechanism Packaging Machine | Forma Technology Industry and Trade Inc. | Engineering / Architecture |
| 19 | AI-Supported Personalized Software Training Platform | GoIT Education and Consulting Ltd. | Software |
| 20 | Puzzle-Type Mobile Game Project | Grand Games Software Inc. | Software |
| 21 | Payment Facilitator Virtual POS Model | Hangisi Internet and Information Services Inc. | Banking and Finance |
| 22 | Therapy Services Enhanced by AI Tools | Heppi Technology and Health Services Inc. | Software |
| 23 | Next-Generation Online Flower Platform Connecting Producers and Consumers | Hızlı Çiçek Internet Services Inc. | Software |
| 24 | 8×8 Armored Vehicle Exhaust System Design Project | Hobi Exhaust Spare Parts Industry and Trade Ltd. | Automotive |
| 25 | Next-Generation ERP Applications Software System | Inita Information Trade Inc. | Software |
| 26 | Next-Generation ERP Applications | Inita Information Trade Inc. | Software |
| 27 | Education Marketplace Platform (Ed-Tech Store) | K12 Pulse Information Technologies Inc. | Software |
| 28 | Safe AI: AI-Based Mobile Security Service | Karma Social Information and Technology Inc. | Software |
| 29 | Rapid Fault Diagnosis and Solution System | Limon Information Technologies Inc. | Software |
| 30 | Cross-Platform Technology Development for Video Games | Litio Games Software Inc. | Software |
| 31 | E-Signature and Certificate-Based Identity Verification and Legal Service Platform | LYFE Digital Software Trade Inc. | Computer and Communication Technologies |
| 32 | Development of Software Infrastructure for Autonomous Web Traffic Management | Magicorn Information Technologies Ltd. | Software |
| 33 | Development of Software Infrastructure for Autonomous Web Traffic Management – Phase 2 | Magicorn Information Technologies Ltd. | Software |
| 34 | Application Performance Management and Monitoring Software Using AI | Mask Technology Services Ltd. | Software |
| 35 | Employee Support Application | Mask Technology Services Ltd. | Software |
| 36 | PLSQL Infrastructure Change | Mask Technology Services Ltd. | Software |
| 37 | Open-Source Mobile Application for Asset Management and Financial Services | Maslak Technology Inc. | Software |
| 38 | Pension and Insurance Center Management System | MCK Software and Consulting Ltd. | Software |
| 39 | Global Card-Supported Fleet Fuel Payment POS System | MCK Software and Consulting Ltd. | Software |
| 40 | Development of Cloud-Based Hospital Information Management System | Medicare Medical Private Health Services Inc. | Software |
| 41 | Store Inspection and Ticket Application for Retail Sector | Mksoft Information Consulting and Logistics Ltd. | Software |
| 42 | Jacca AdNetwork Integrated Dynamic Digital Advertising and Marketing Solutions Platform | Mobite Information Technologies Inc. | Software |
| 43 | Distributed Computing Environment (DCE) Project | Modelra R&D and Software Ltd. | Software |
| 44 | Flexible and Modular Game Infrastructure for Mobile Game Design | Morii Game Software Import & Export Inc. | Software |
| 45 | Insurance Claim Notification Platform | Nevoc Information Services (Nevzat Akpolat) | Software |
| 46 | AI-Driven Agile Transformation for Data-Driven Education Management | Onabu Technology Inc. | Software |
| 47 | Organizational Development Software | Organizational Development Technologies Inc. | Software |
| 48 | Warehouse Optimization and Management Module | Ozsoft Software and Consulting Ltd. | Software |
| 49 | Tekir Talent Management System | Özgür Software Information Education Trade Inc. | Software |
| 50 | Mobile Platform Development for Tekir Talent Management System | Özgür Software Information Education Trade Inc. | Software |
| 51 | Web-Based Dynamic Pricing Application Analyzing Consumer Behavior | Pricing Coach Global Software Trade Inc. | Software |
| 52 | Image Generation Portal Using AI Technology (P-AI) | Priorlabs Technology Inc. | Software |
| 53 | Rapid Self Service: Next-Generation Process Management System | Rapidsol Information Services Ltd. | Software |
| 54 | REHAT Life Platform | Rehat Technology and IT Company | Banking and Finance |
| 55 | Cloud-Based Infrastructure for Industry-Specific AI Chat Applications | Retter Technology Inc. | Software |
| 56 | AI-Supported Athlete Performance Development Application | Sanitas Software Development Ltd. | Software |
| 57 | Pardus Front-End Software | Sea Software Inc. | Software |
| 58 | Dynamic and Scalable Online Retail Platform Optimization Project | SH Information and Trade Inc. | Software |
| 59 | Dynamic and Scalable Online Retail Platform Optimization Project – Phase 2 | SH Information and Trade Inc. | Software |
| 60 | Modular Puzzle Game Development Infrastructure Platform | Superblast Games Technology Inc. | Software |
| 61 | Maestro: Smart Building Maintenance, Material, and Inventory Management Software | Tacosoft Computer and Internet Software Ltd. | Computer and Communication Technologies |
| 62 | Algorithmic and High-Speed Transaction Application | Tankx Financial Technologies Inc. | Software |
| 63 | Structural Development for Energy Storage Systems Suitable for Electrical Grids | Techinova Energy Consulting Software and Food Trade Ltd. | Energy |
| 64 | SQL Server Monitoring and Management Application | Tezcan Atlas Database and Software Technologies | Software |
| 65 | SQL Server Health Checker | Tezcan Atlas Database and Software Technologies | Software |
| 66 | E-Commerce Marketplace – SuperApp | Topluyoruz Information Technologies Marketing and Trade Inc. | Software |
| 67 | T-FOCUS | Tüyak Digitalization and Technology Industry Trade Ltd. | Software |
| 68 | Upsonic Deployment – Reducing Code Distribution Project | Upsonic Technology Inc. | Software |
| 69 | AI and Machine Learning-Based Textile Design Software (URTH) | URTH AI Technology and Software Inc. | Software |
| 70 | Vacax Digital Rent System | Vacax Technology and Consulting Inc. | Computer and Communication Technologies |
| 71 | Development of Integrated AI-Based Digital Media Services Platform | Who Analytics Digital Services Ltd. | Software |
| 72 | Parental Tracking Application with Motion Detection and Proximity Monitoring Features | Who Analytics Digital Services Ltd. | Software |
| 73 | Intelligent Education with Vector AI | Yes Hardware Software and IT Technologies Ltd. | Software |
| 74 | Intelligent Education with Vector AI – Phase 2 | Yes Hardware Software and IT Technologies Ltd. | Software |
| 75 | Credit Risk Scoring | Zogal Technology Inc. | Software |
Through this form, you can access news, announcements, faculties and departments, base scores, our academic staff and administrative personnel, and their internal phone numbers.
Phone: +90 (212) 533 65 32
Fax: +90 (212) 631 91 50
Email: [email protected]
Address: Cibali Mah. Kadir Has Cad. 34083 Fatih, İstanbul